• Appartement à vendre Barrio Salamanca, Castellana, Madrid
    2 480 000 EUR

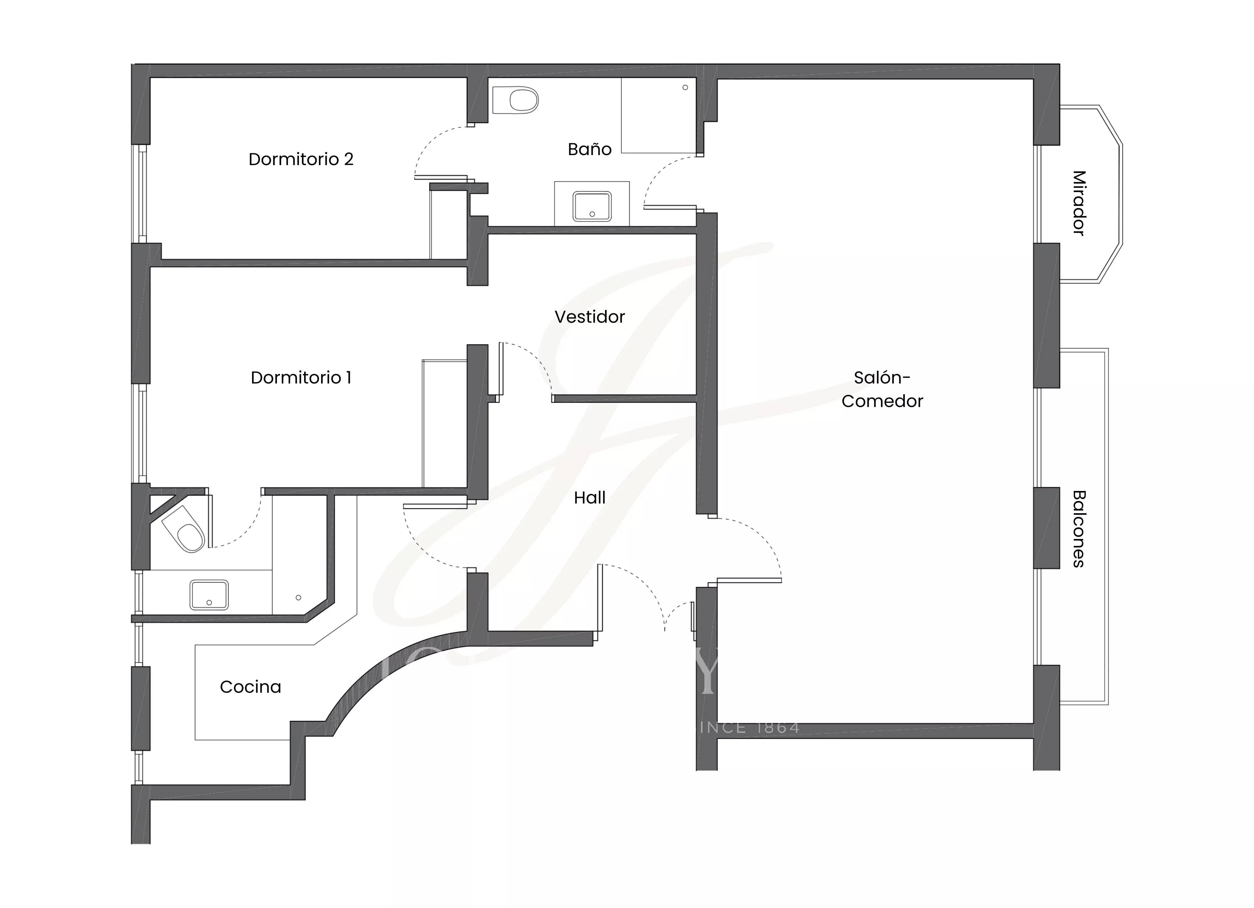
Surface 125 m²125 m²2 Chambres2 Chambres2 Salles de bains2 Salles de bainsÉtage 6/8Étage 6/8Exposition West West Vue Rue Rue Air conditionnéAir conditionné

Projet exclusif de rénovation dans un emplacement d’exception

  • V2771MA
  • Vente
  • Appartement

Situé dans un élégant immeuble classique en parfait état, ce lumineux appartement extérieur au sixième étage représente une magnifique opportunité d'investissement et de personnalisation dans l'une des adresses les plus recherchées du quartier de Salamanque.

La propriété se distingue par ses vues agréables et son excellente lumière naturelle grâce à ses deux balcons et à une charmante baie vitrée qui ajoutent du caractère et de la distinction à la façade. Elle est actuellement présentée pour être rénovée, offrant un potentiel extraordinaire pour concevoir une maison contemporaine et fonctionnelle avec deux chambres en-suite, un salon spacieux, une cuisine séparée, une salle de bain pour les invités et une buanderie.

La propriété dispose d'un service de conciergerie et conserve le charme architectural classique si apprécié dans le quartier. La propriété dispose d'un chauffage individuel et d'un système de climatisation, garantissant un confort tout au long de l'année.

Une occasion unique de créer une résidence sur mesure dans un emplacement de choix, entouré des meilleures boutiques, restaurants et services exclusifs de Madrid.

Proximités

  • Bus
  • Métro
  • Commerces
  • École primaire
  • Centre ville
  • Hôpital/clinique
  • Médecin
  • Taxi
  • Parc
  • Supermarché
  • Palais des congrès

agence immobilière de prestige MADRID - SALAMANCA
  • BACCO ASESORES SL
    65, Calle Lagasca
  • 28001 MADRID - SALAMANCA
  • ESPAGNE

John Taylor
Demande en ligne

* Champs obligatoires
Les informations recueillies sont nécessaires au traitement de votre demande. À tout moment, vous disposez d’un droit d’accès, de modification et de suppression de vos données.