• Appartement à vendre Principaute De Monaco, Jardin Exotique
    10 900 000 EUR

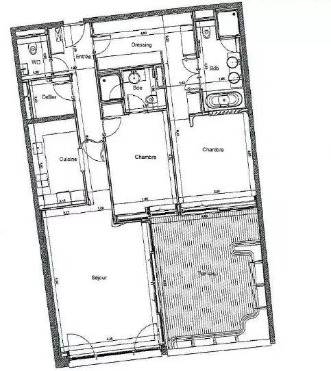
Surface 125 m²125 m²2 Chambres2 Chambres3 Pièces3 PiècesÉtage 2/7Étage 2/7Exposition South South Vue Mer Mer Terrain 156 m²156 m²Air conditionnéAir conditionné

Jardin Exotique - L'Exotique - 3 pièces

  • V1890MC
  • Vente
  • Appartement

Découvrez ce superbe appartement de deux chambres situé au sein de l’Exotique, une résidence récemment livrée, nichée dans un environnement naturel et offrant une vue panoramique exceptionnelle sur le Palais et la mer Méditerranée.

L’appartement offre un vaste séjour prolongé par une terrasse orientée mer, une cuisine moderne entièrement équipée, une buanderie, un toilette invité, ainsi que deux chambres en suite dotées chacune de son propre balcon et d’un dressing, également tournés vers la mer.

Les résidents profitent d’un espace bien-être privé comprenant piscine et installations dédiées. L’ensemble des logements se distingue par des prestations haut de gamme et des équipements de dernière génération. L’exposition plein sud du bâtiment garantit une luminosité optimale toute la journée.

Une place de stationnement complète ce bien.

agence immobilière de prestige MONACO
  • JOHN TAYLOR & SON
    20 boulevard des Moulins
  • 98000 MONACO
  • Monaco, PRINCIPAUTÉ DE MONACO

John Taylor
Demande en ligne

* Champs obligatoires
Les informations recueillies sont nécessaires au traitement de votre demande. À tout moment, vous disposez d’un droit d’accès, de modification et de suppression de vos données.