• Exclusif

  • Appartement à vendre Principaute De Monaco, Fontvieille
    4 200 000 EUR

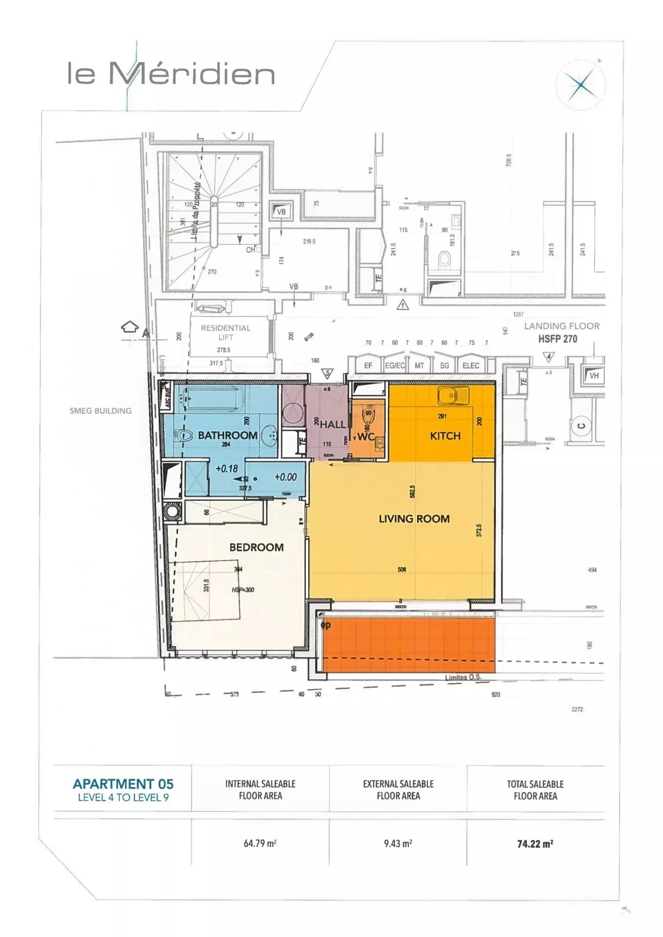
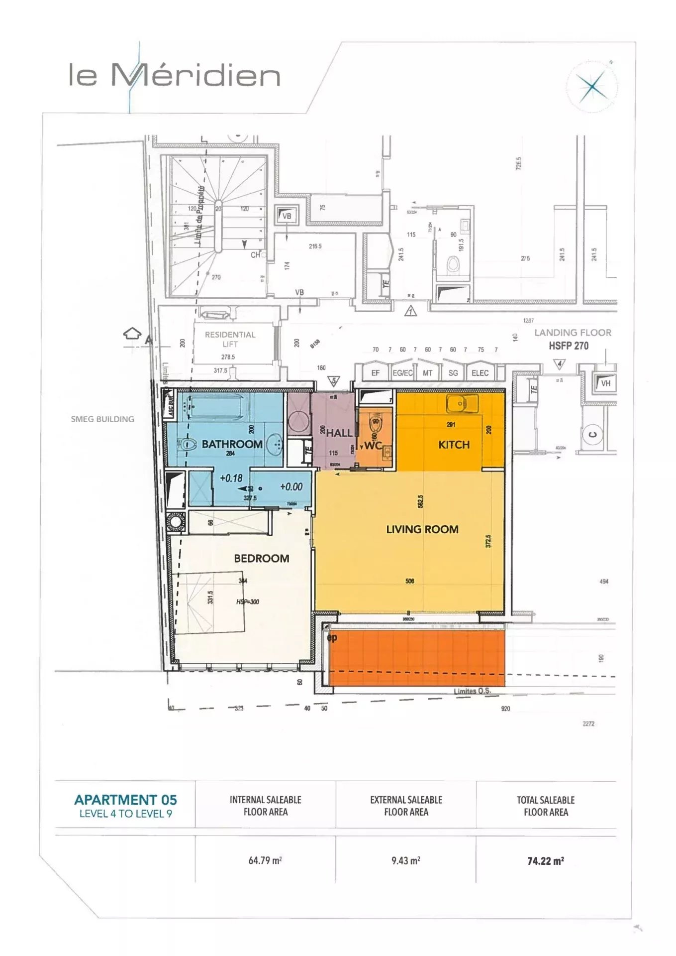
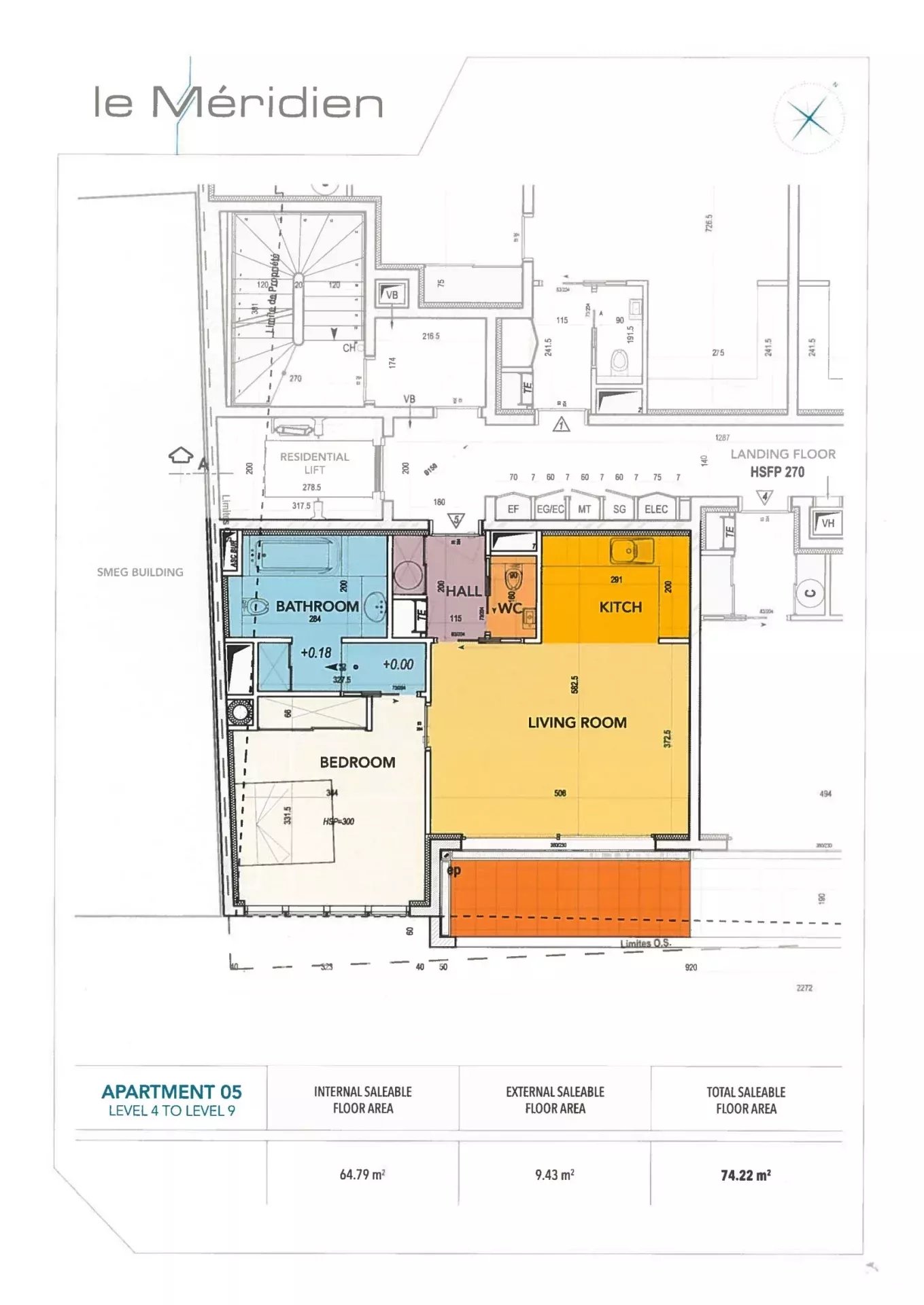
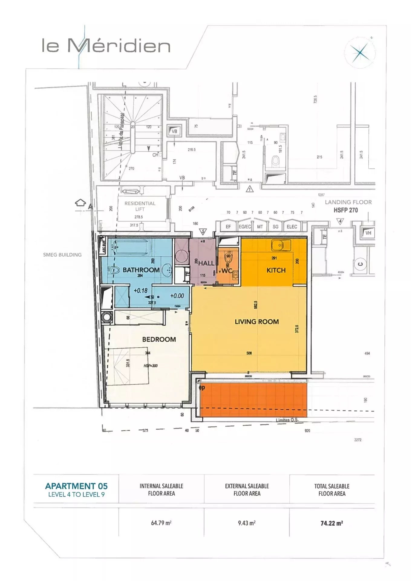
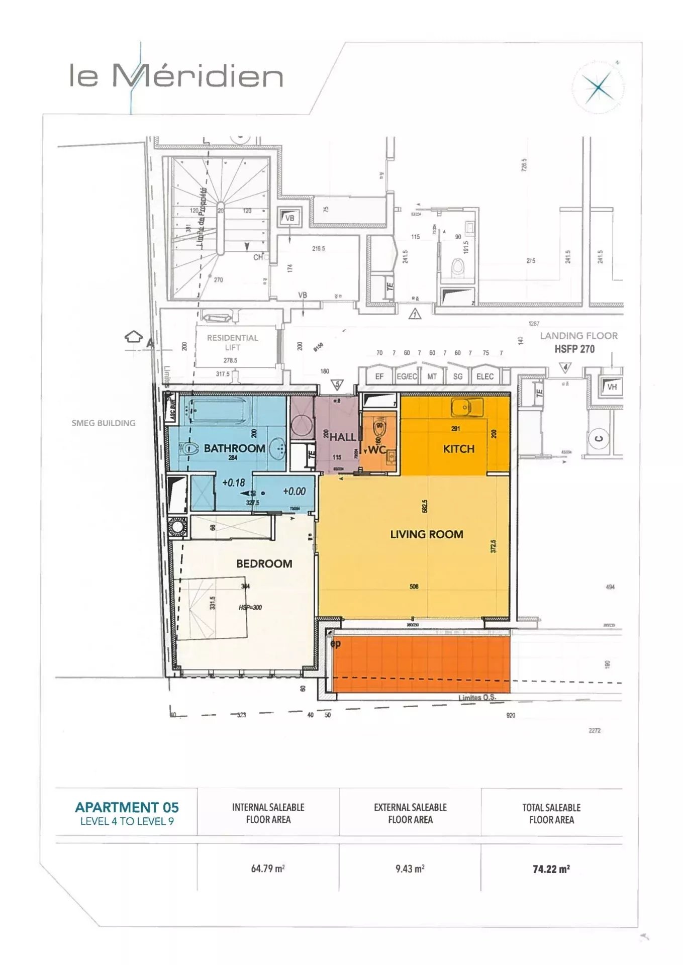
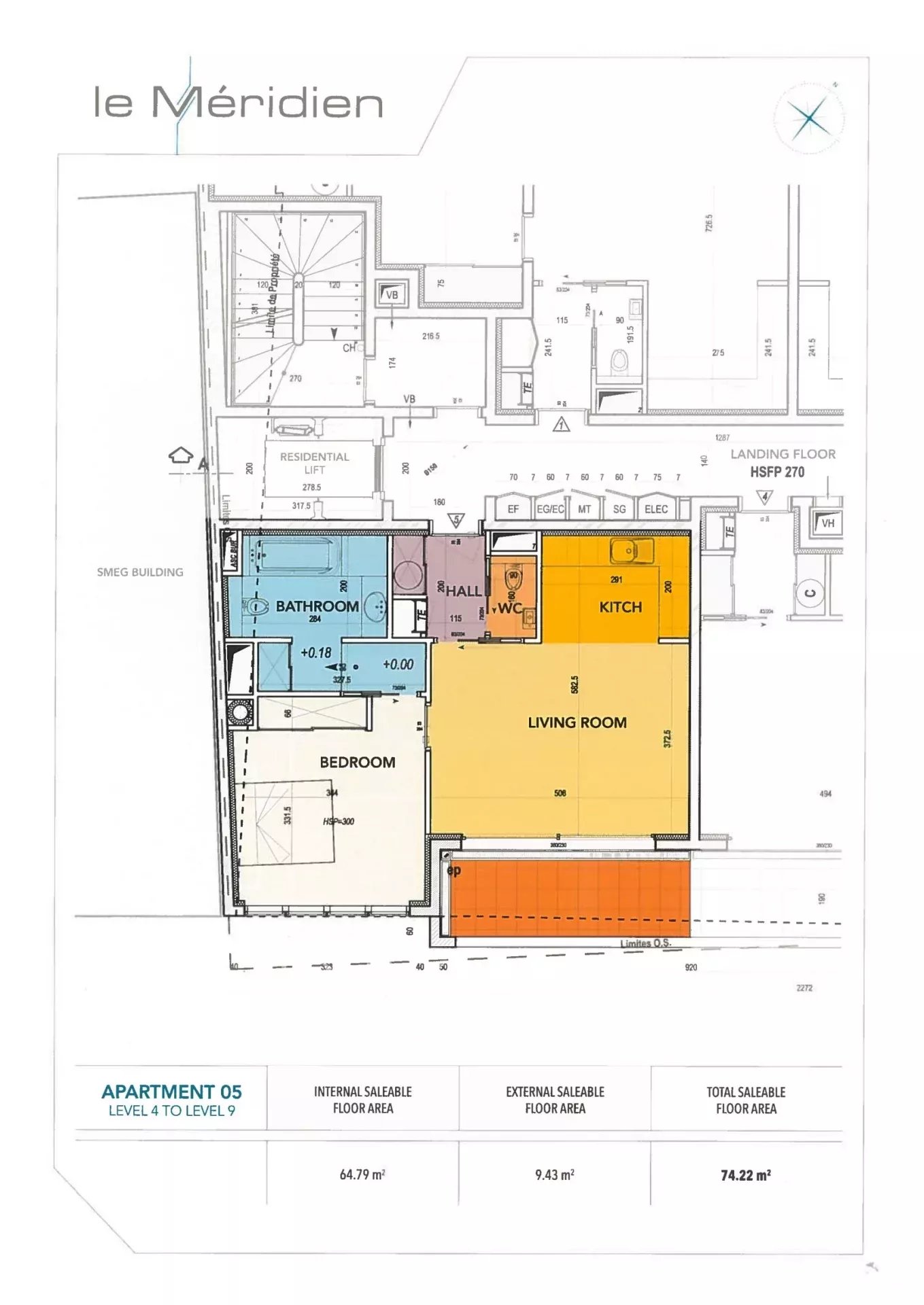
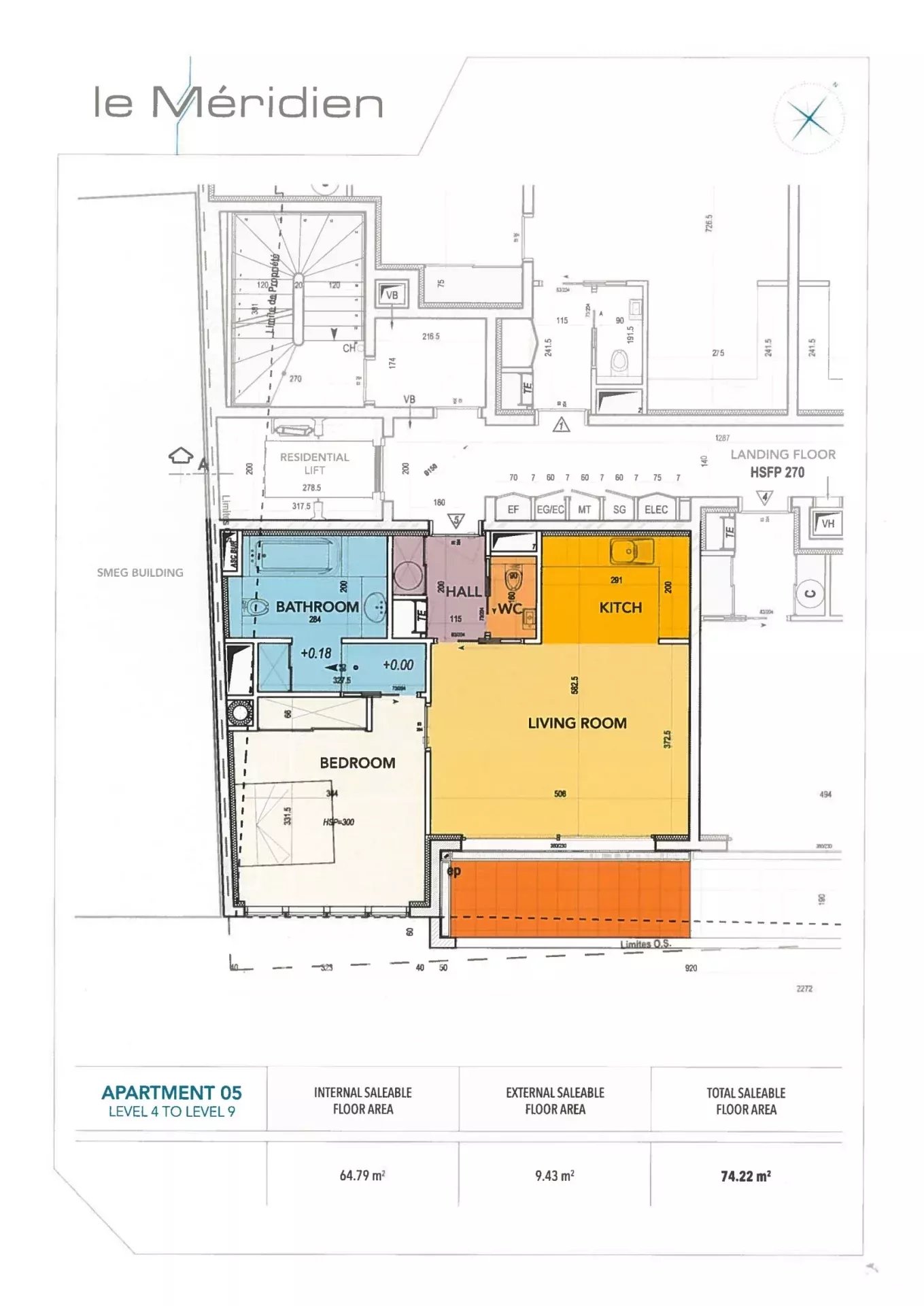
Surface 65 m²65 m²1 Chambres1 Chambres2 Pièces2 PiècesÉtage 9/9Étage 9/9Vue Dégagée Port Dégagée Port Balcon / Balcons 9 m²9 m²Terrain 74 m²74 m²Parking / ParkingsParking

Fontvieille - Le Méridien - 2 pièces - Immeuble récent

  • V1597MC
  • Vente
  • Appartement

Agréable appartement de deux pièces situé au dernier étage d'une résidence récente et recherchée, idéal tant pour un investissement que pour un pied-à-terre. Très lumineux, il bénéficie d’une vue dégagée sur le port de Fontvieille, appréciable depuis le balcon.

L’appartement se compose d’une cuisine ouverte sur le séjour, de toilettes invités et d’une chambre en suite.

Atout rare : l’appartement voisin, de configuration quasi identique, est également proposé à la vente. Leur réunion offre une opportunité exceptionnelle de créer un spacieux appartement de 3 à 4 pièces, avec de beaux volumes et une vue ouverte, dans un immeuble récent de Fontvieille.

agence immobilière de prestige MONACO
  • JOHN TAYLOR & SON
    20 boulevard des Moulins
  • 98000 MONACO
  • Monaco, PRINCIPAUTÉ DE MONACO

John Taylor
Demande en ligne

* Champs obligatoires
Les informations recueillies sont nécessaires au traitement de votre demande. À tout moment, vous disposez d’un droit d’accès, de modification et de suppression de vos données.