• Terrain à vendre Restelo, Lisbonne, Portugal
    2 995 000 EUR

6 Chambres6 Chambres7 Salles de bains7 Salles de bainsGarage / GaragesGarage

Terrain | 1.379 m² | Projet d'architecture pour 2 maisons | Restelo, Lisbon

  • V0400LI
  • Vente
  • Terrain

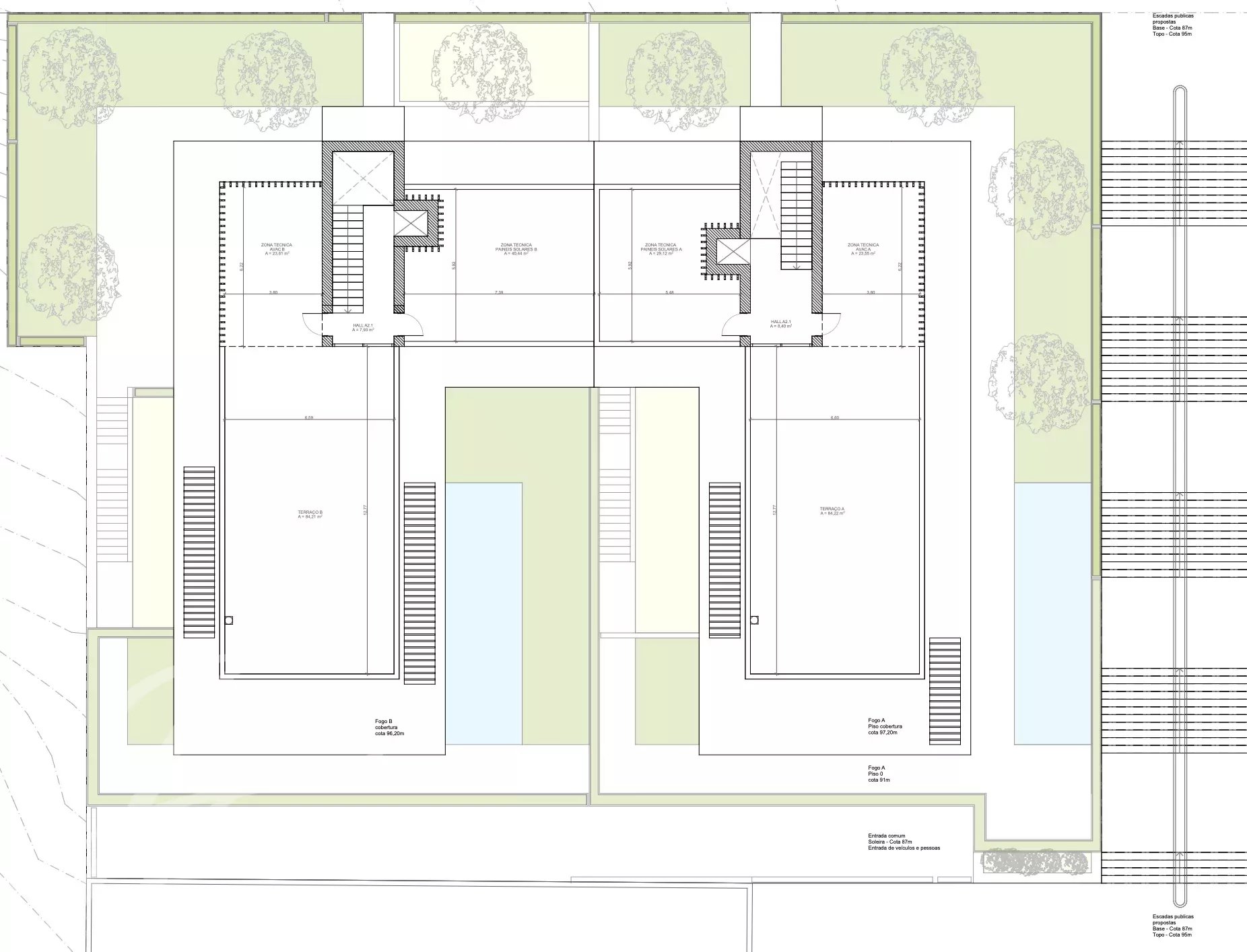
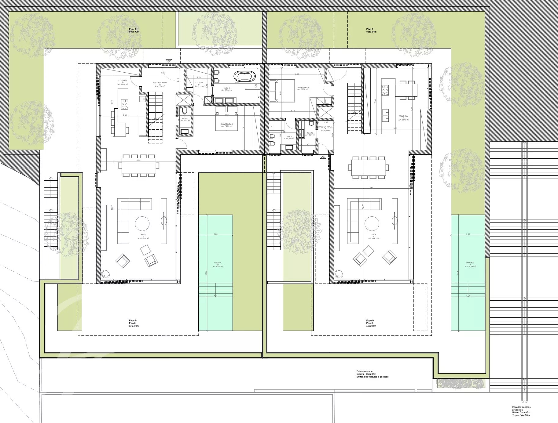
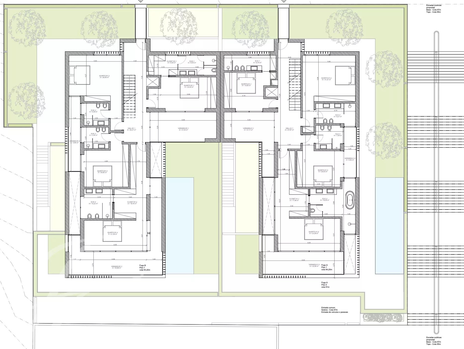
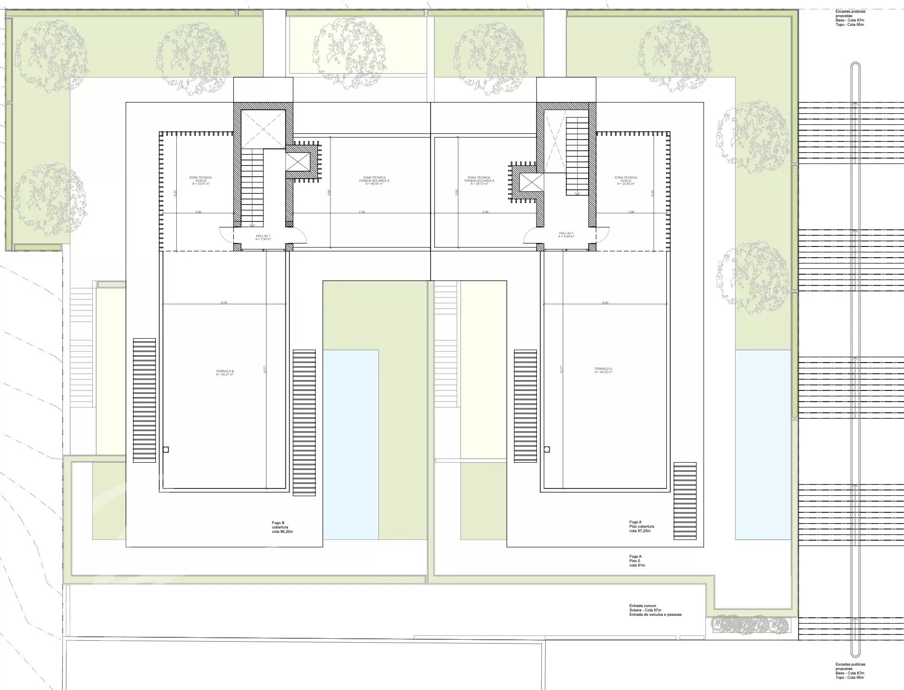
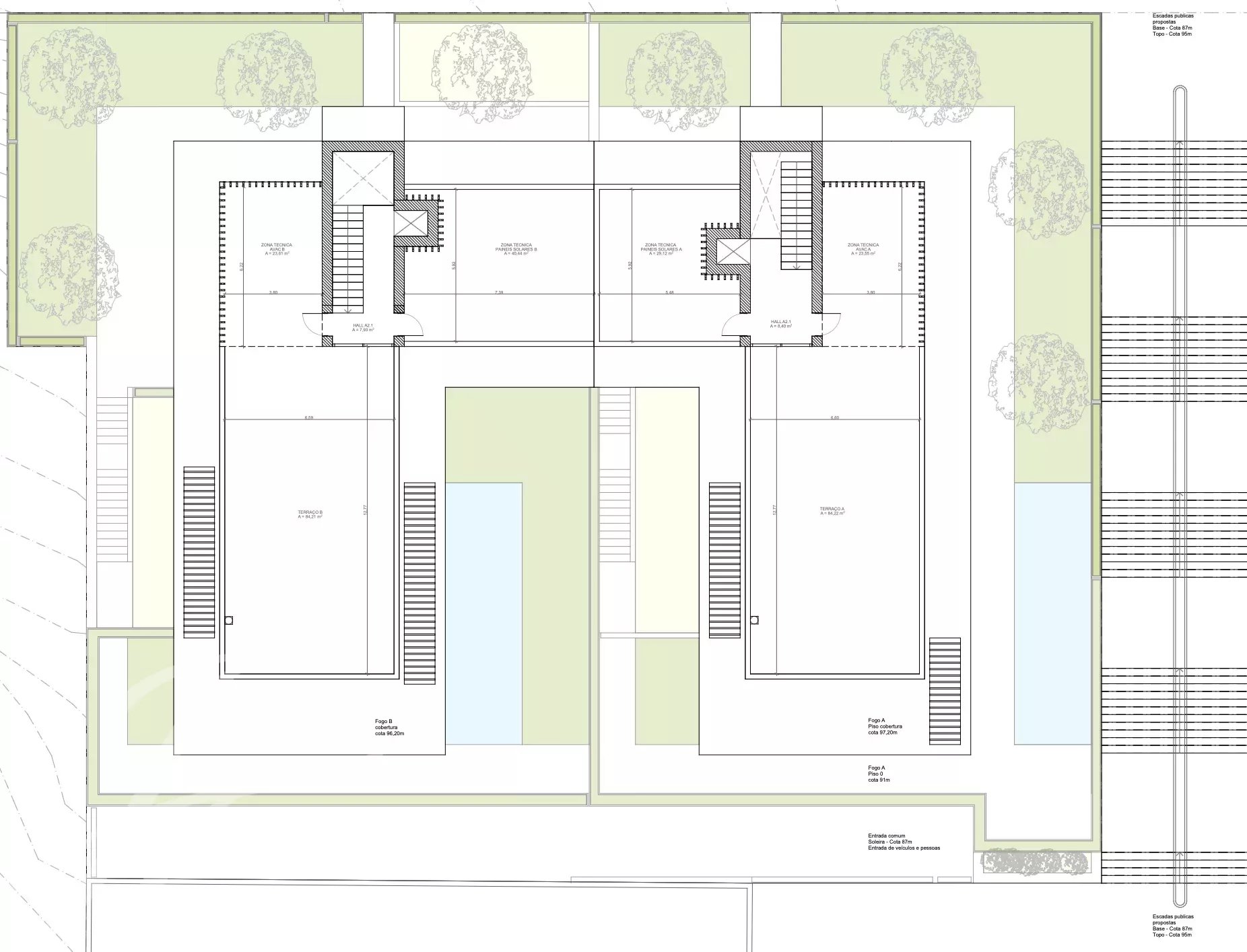
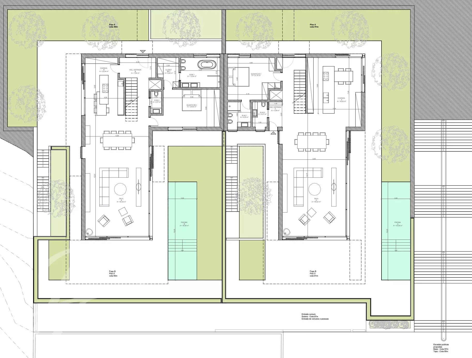
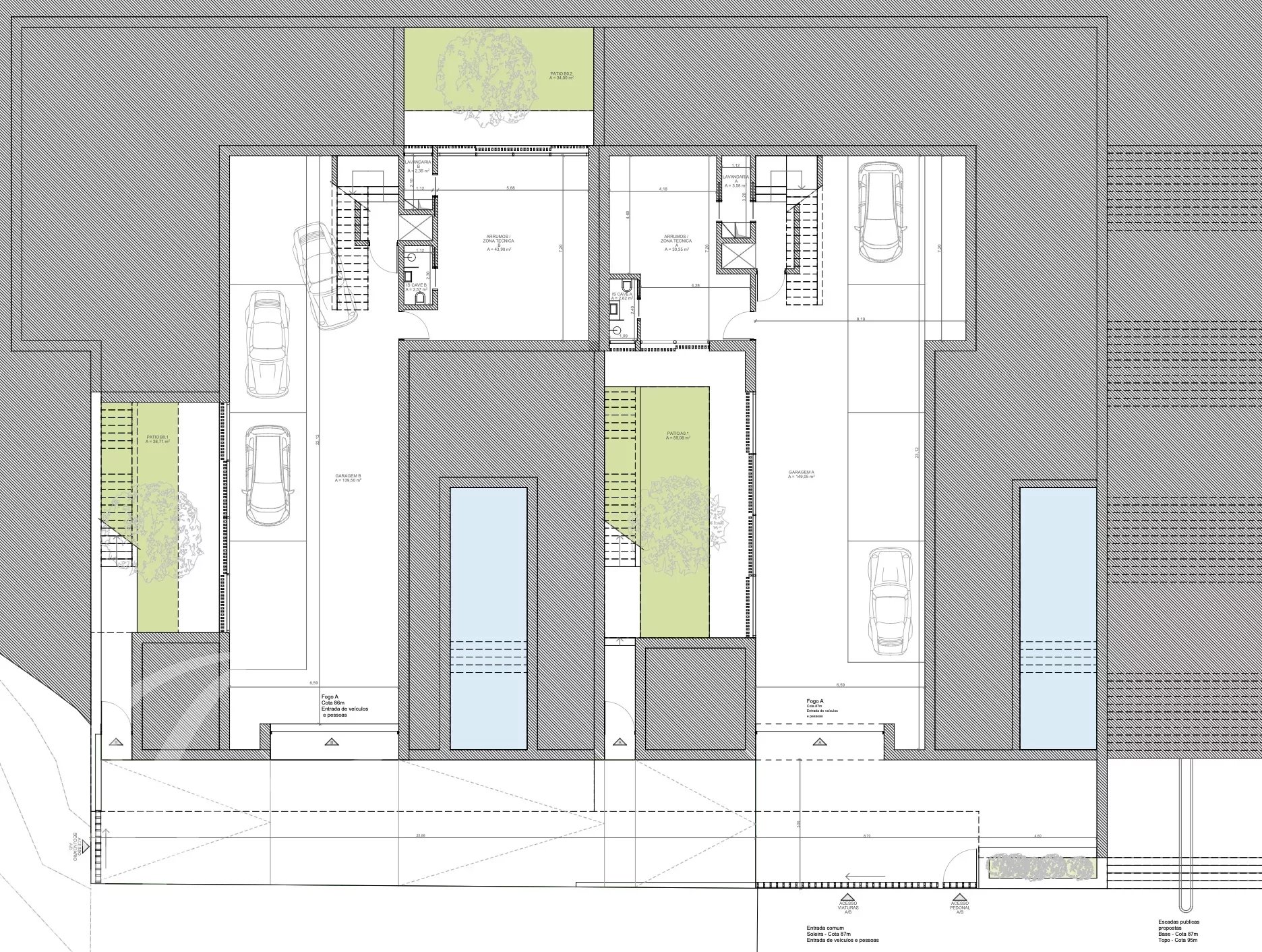
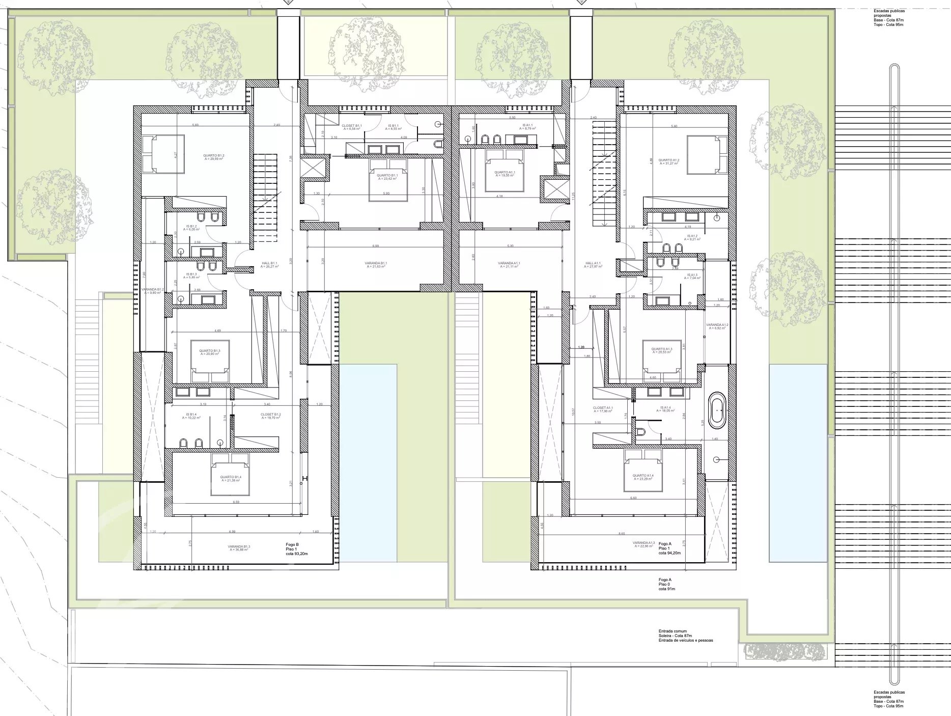
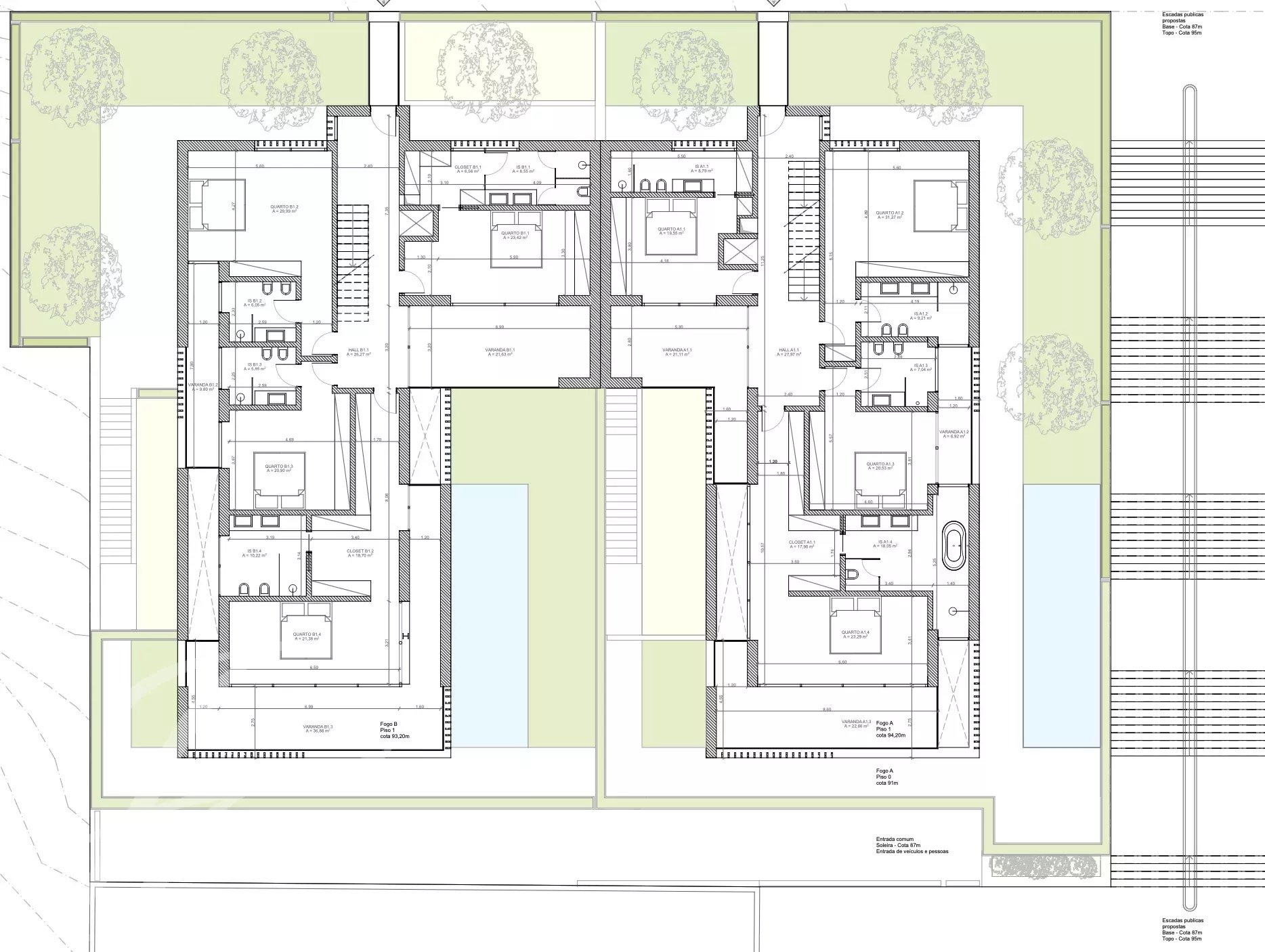
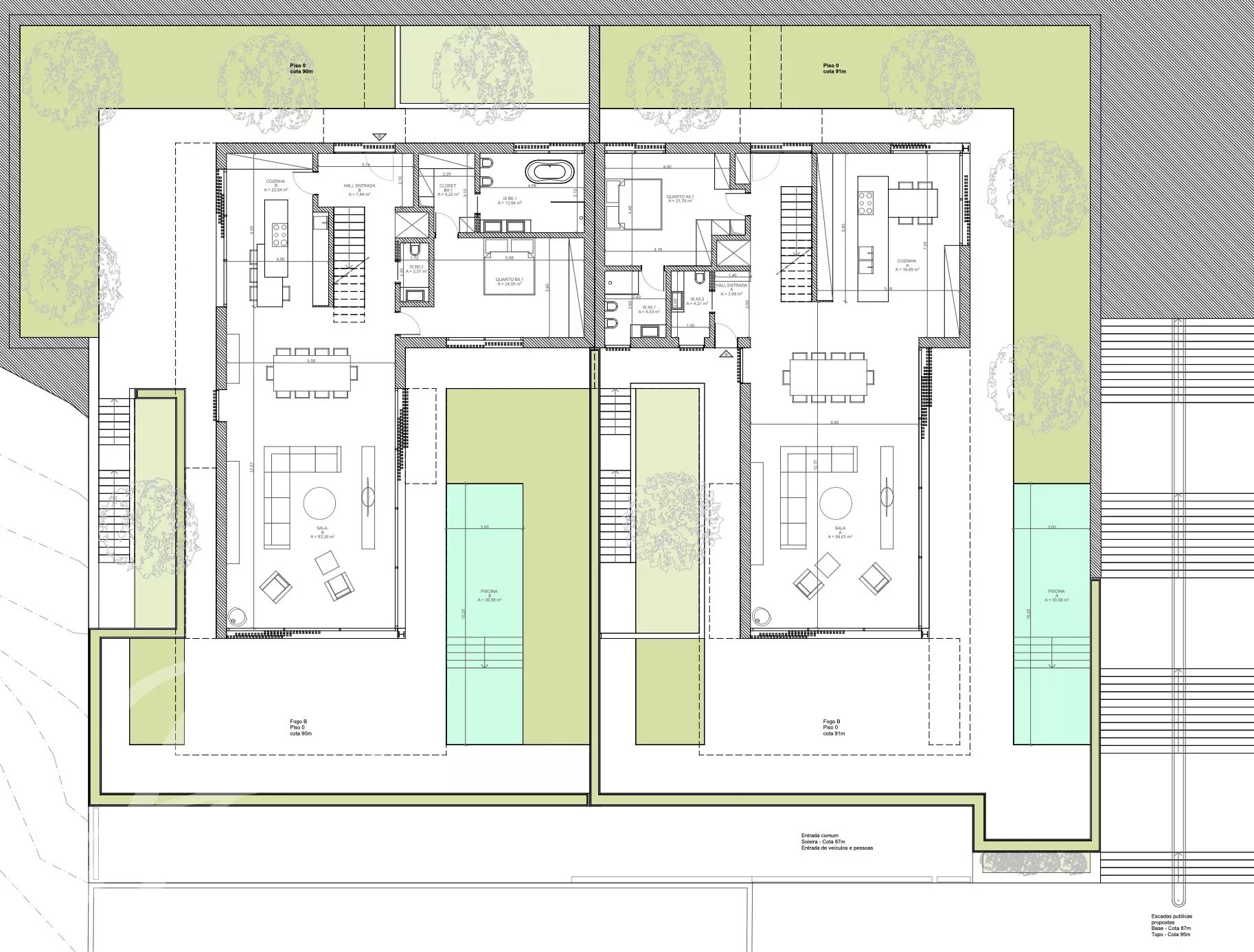
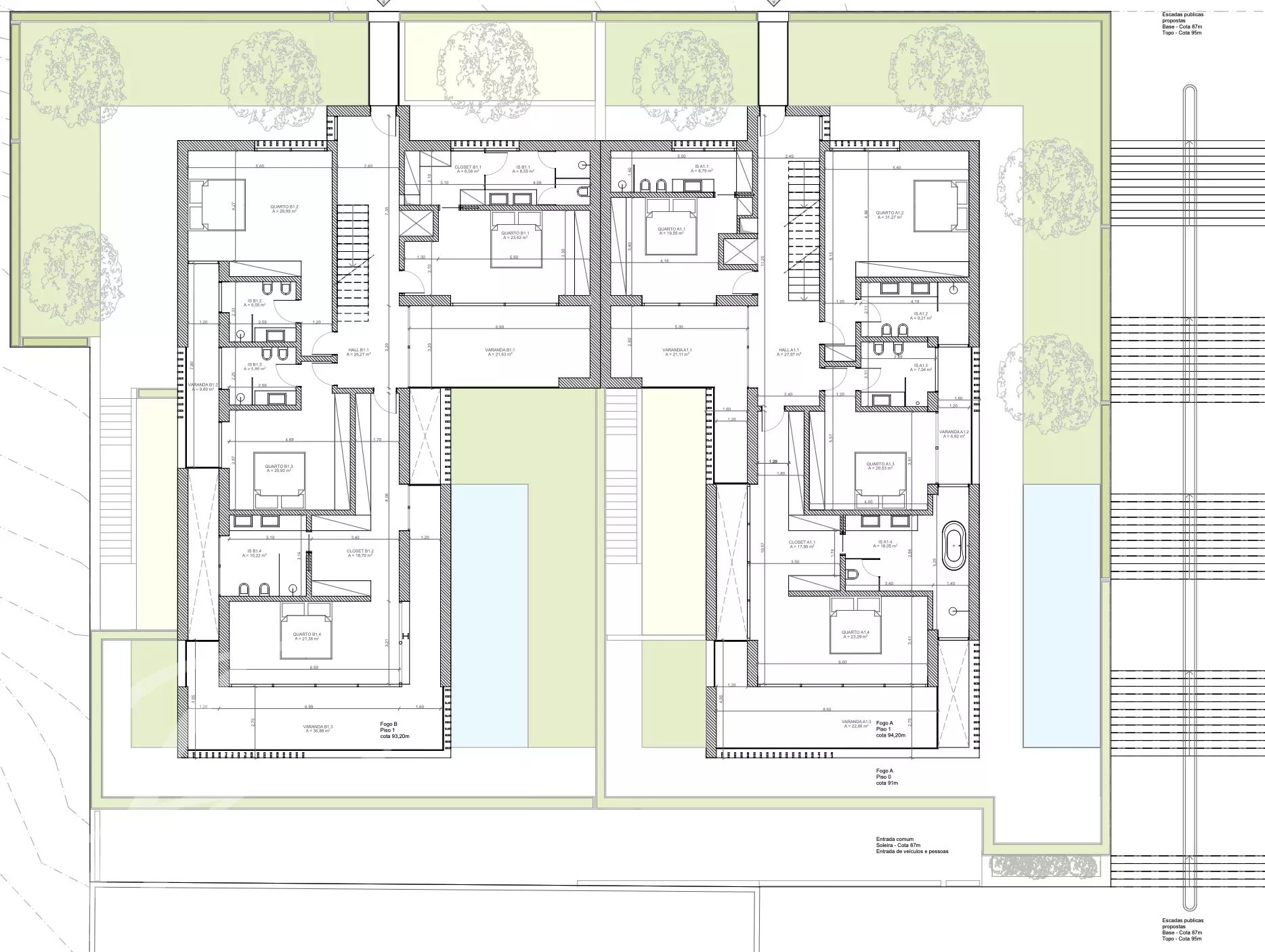
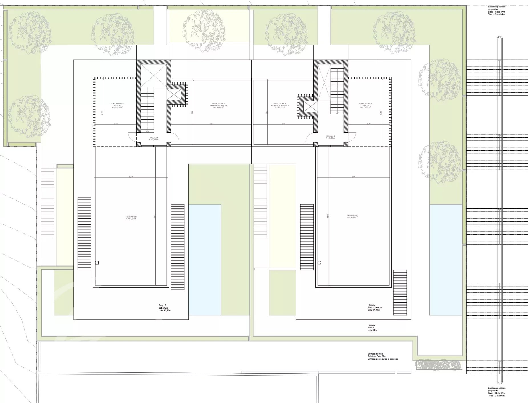
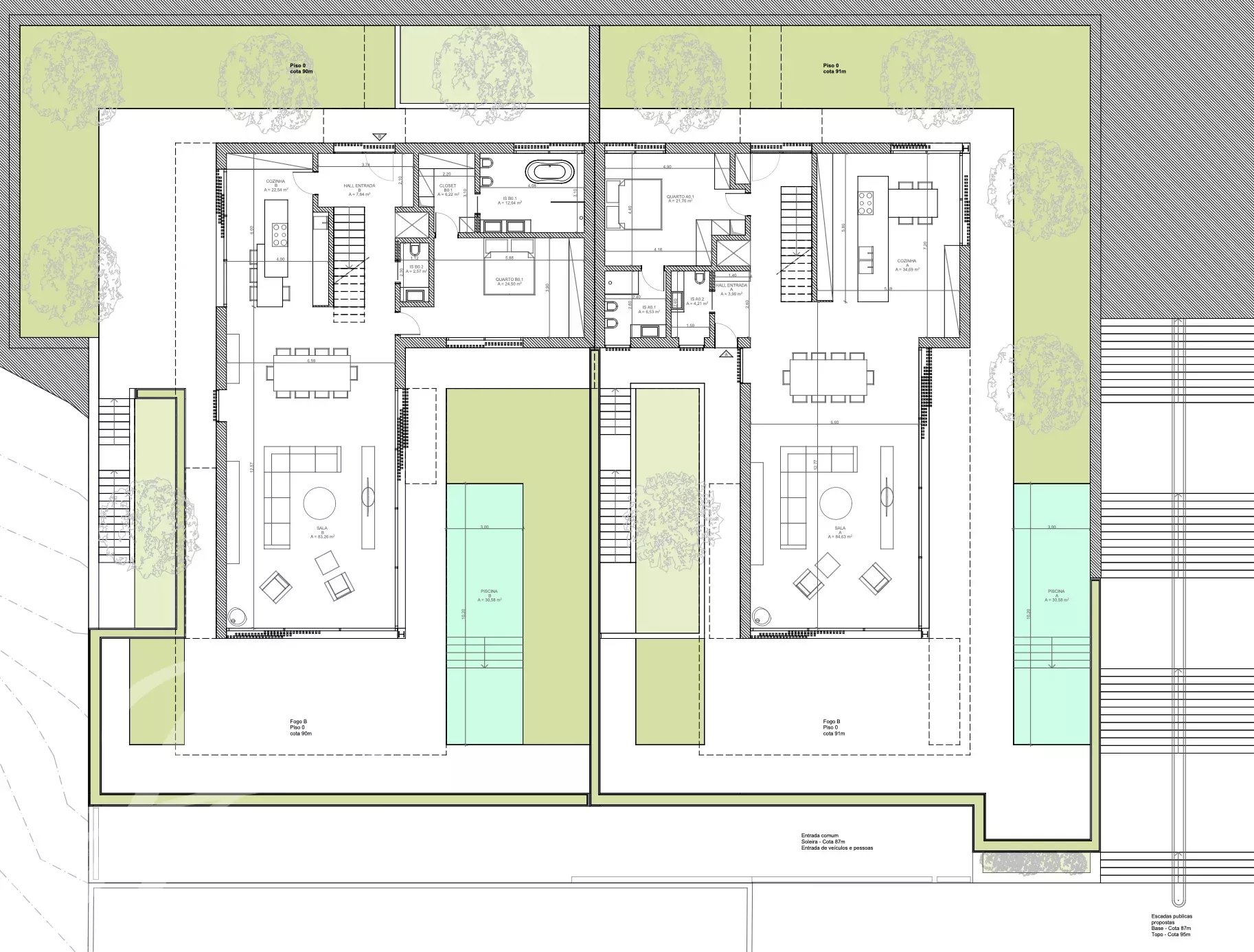
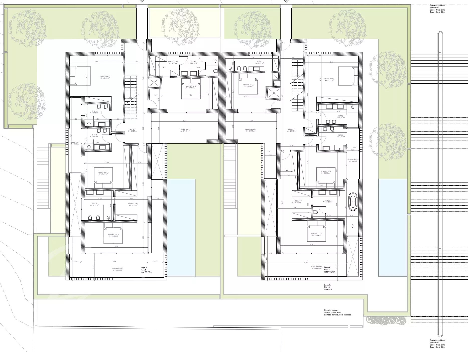
Un terrain de 1 379 m², avec un projet architectural approuvé qui offre la possibilité de construire une ou deux maisons individuelles. La solution actuellement approuvée est celle de deux maisons jumelées, ce qui correspond à deux propriétés autonomes sur un seul terrain.

Le lotissement en vigueur permet, dans toutes les options, une surface brute de construction hors sol de 965 m² et une surface d'implantation de 495 m², ce qui fait de ce terrain une opportunité unique pour un projet résidentiel exclusif, qu'il s'agisse d'un logement personnel, d'un investissement ou d'un développement de haut niveau.

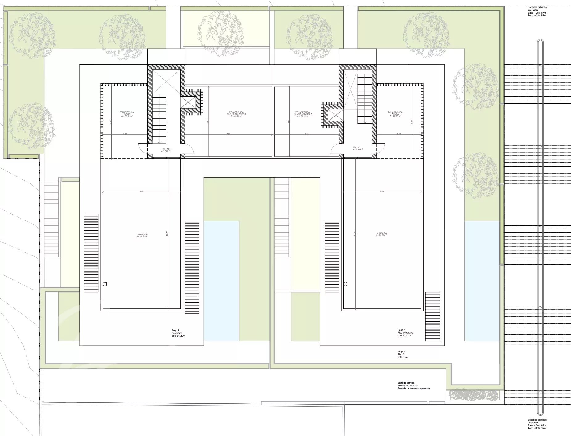
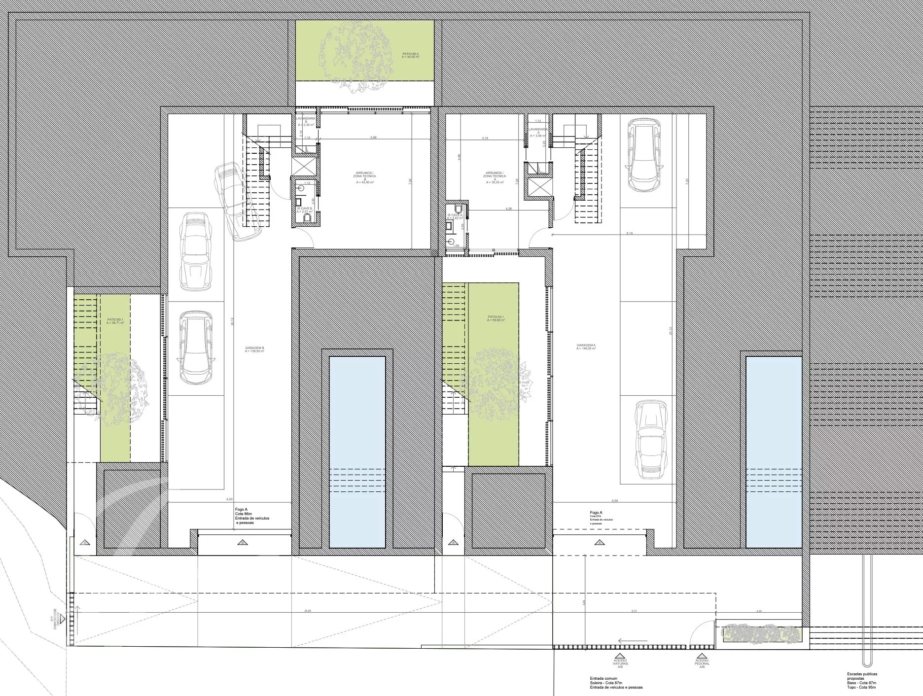
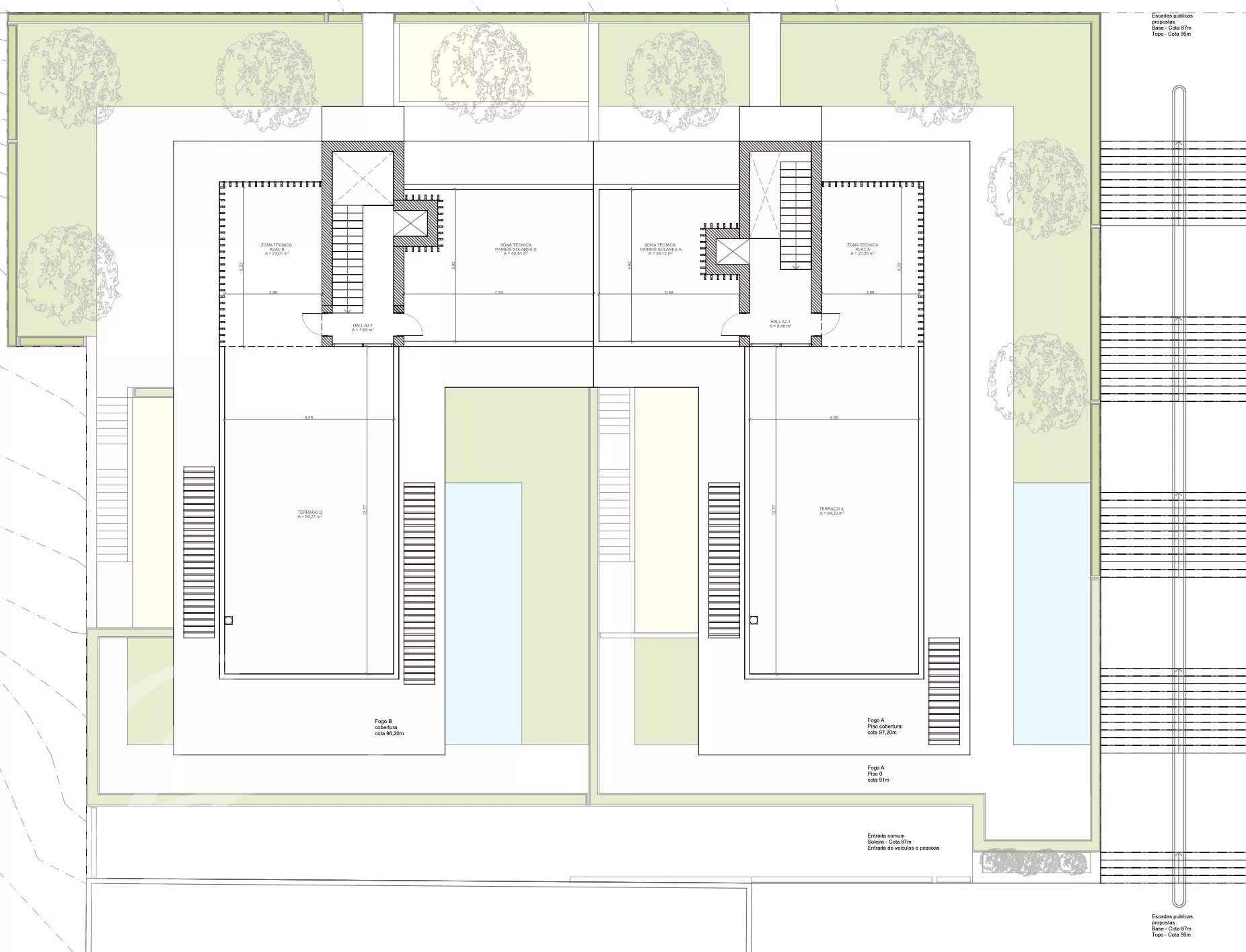
Bien que les villas partagent la rampe d'accès au sous-sol et l'entrée piétonne, chaque unité a été conçue pour assurer une totale indépendance fonctionnelle et résidentielle, avec un parking privé au sous-sol, un jardin exclusif, une piscine individuelle et un accès totalement indépendant. Le projet comprend un sous-sol avec un garage pour quatre voitures, des rangements et une suite avec lumière naturelle, de grands espaces sociaux au rez-de-chaussée, des chambres privées à l'étage et un toit-terrasse de 84 m², offrant des vues larges et dégagées.

Située au cœur du Restelo, l'un des quartiers résidentiels les plus prestigieux de Lisbonne, cette propriété bénéficie d'un cadre absolument unique, entourée de jardins, d'ambassades et de lieux emblématiques tels que la tour de Belém, le monastère des Jerónimos et la Fondation Champalimaud.

John Taylor est l'une des plus anciennes et des plus prestigieuses sociétés internationales d'immobilier de luxe, avec plus de 160 ans d'histoire consacrés à la représentation de propriétés exceptionnelles. Au Portugal, John Taylor opère à Lisbonne, Cascais et Comporta avec une équipe expérimentée et hautement qualifiée, offrant un service personnalisé basé sur la rigueur, la discrétion et une connaissance approfondie du marché.

Pour plus d'informations sur cette propriété ou pour organiser une visite, nous vous invitons à contacter John Taylor Portugal. Nous serons heureux de vous fournir un service professionnel et dévoué.

Proximités

  • Aéroport
  • Autoroute
  • Bus
  • Centre ville
  • Cinéma
  • Commerces
  • Crèche
  • École primaire
  • École secondaire
  • Gare
  • Gare routière
  • Hôpital/clinique
  • Mer
  • Palais des congrès
  • Parc
  • Plage
  • Supermarché
  • Tennis
  • Tramway
  • Université

agence immobilière de prestige LISBONNE
  • TMP REAL ESTATE LDA
    Rua da Lapa, 126
  • 1200-703 LISBONNE
  • PORTUGAL

John Taylor
Demande en ligne

* Champs obligatoires
Les informations recueillies sont nécessaires au traitement de votre demande. À tout moment, vous disposez d’un droit d’accès, de modification et de suppression de vos données.