• Villa à vendre San-Juan, Port De Sant Miquel, Ibiza
    7 800 000 EUR

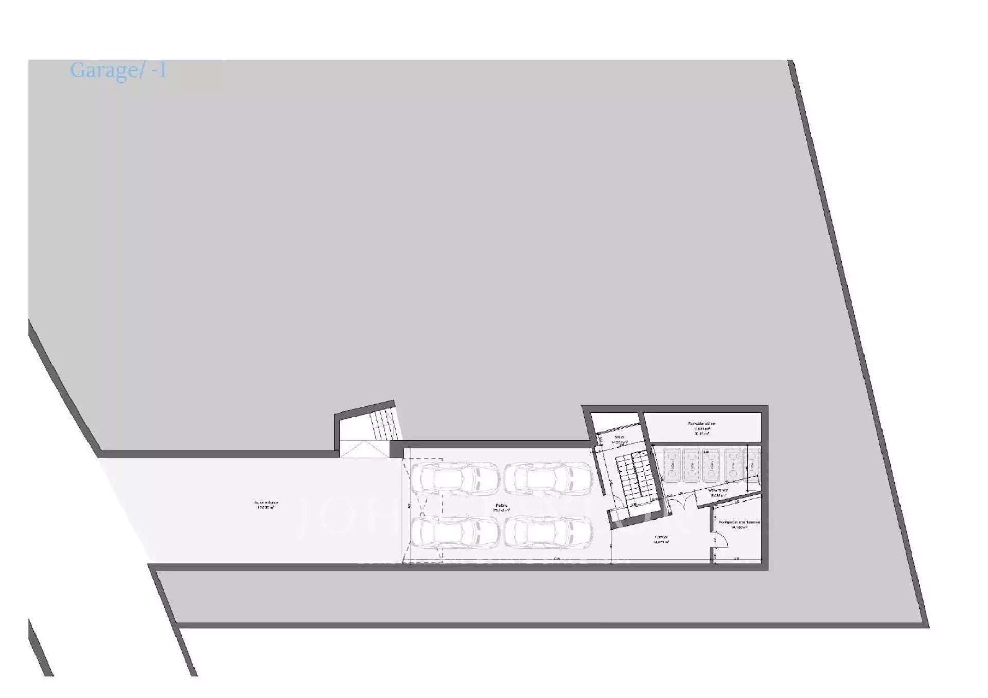
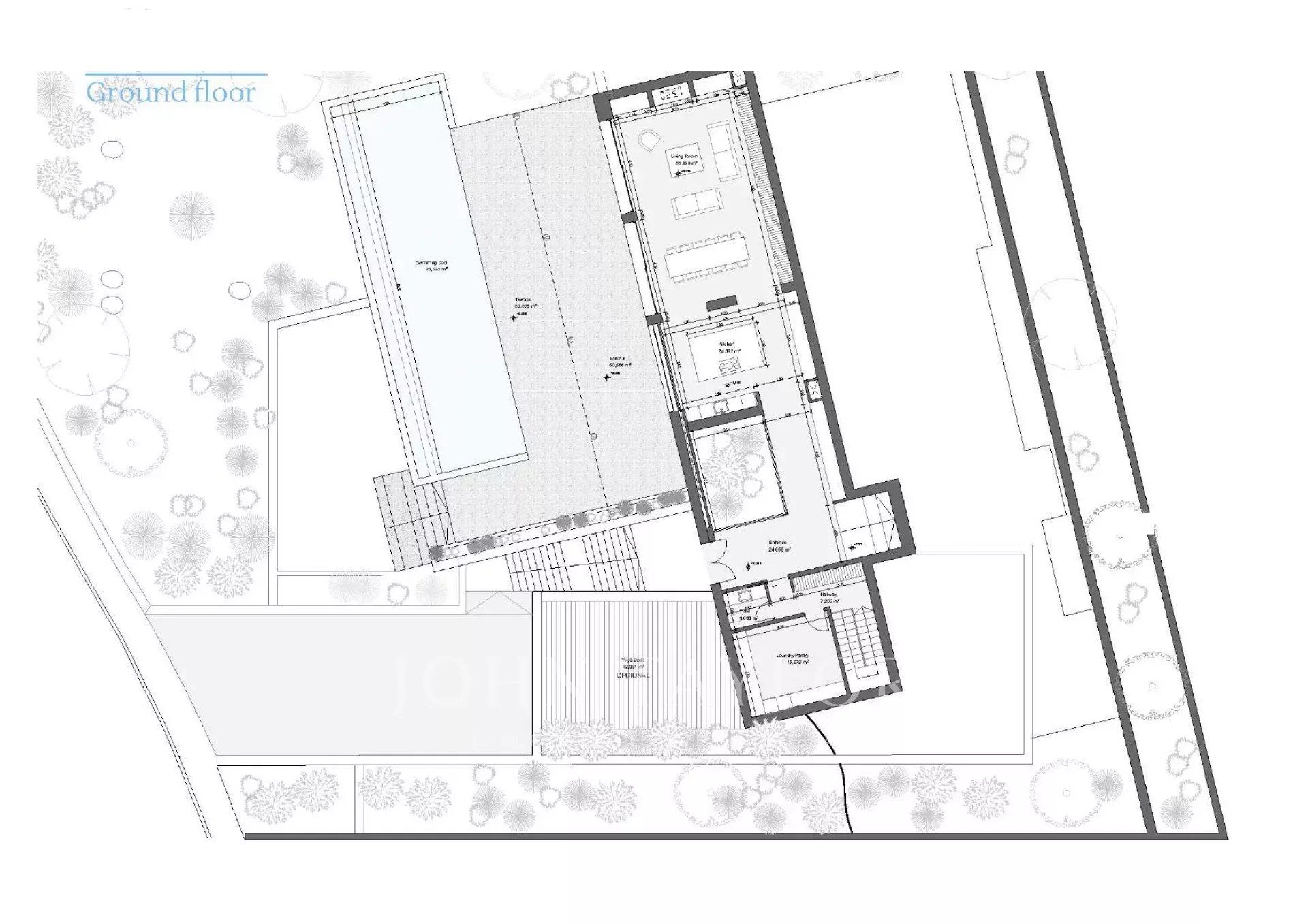
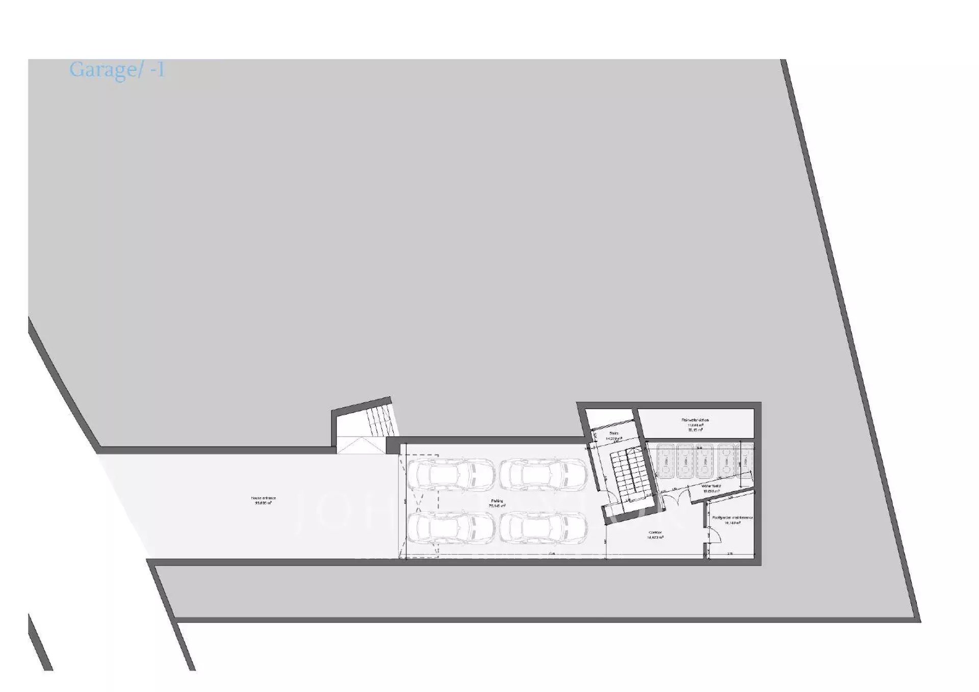
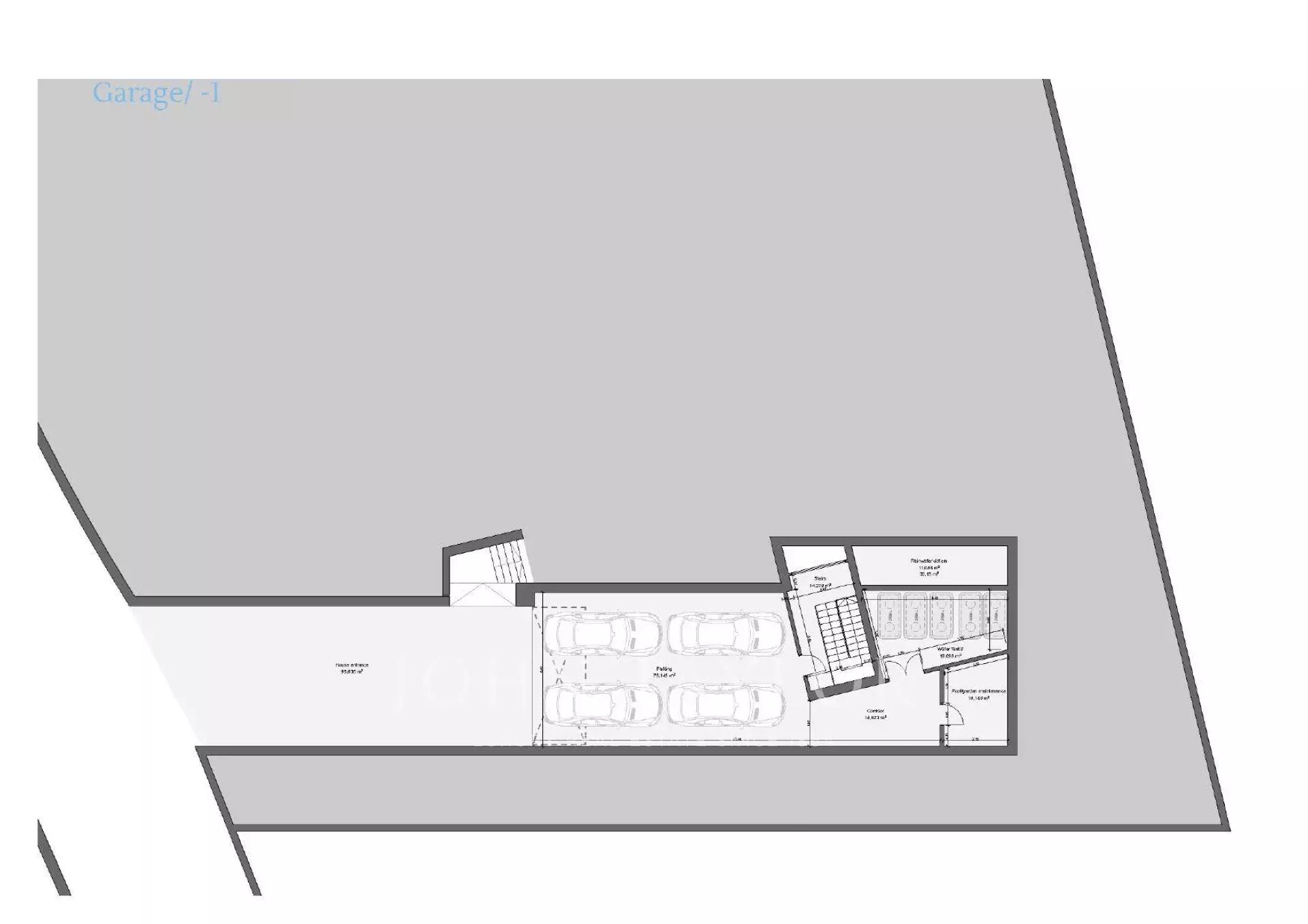
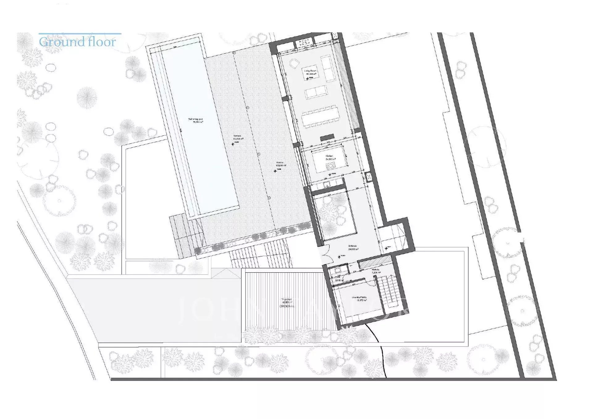
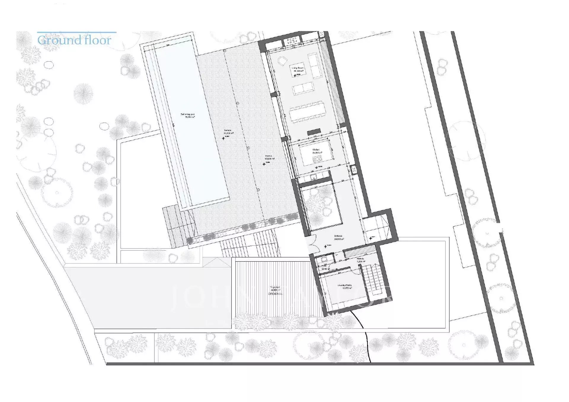
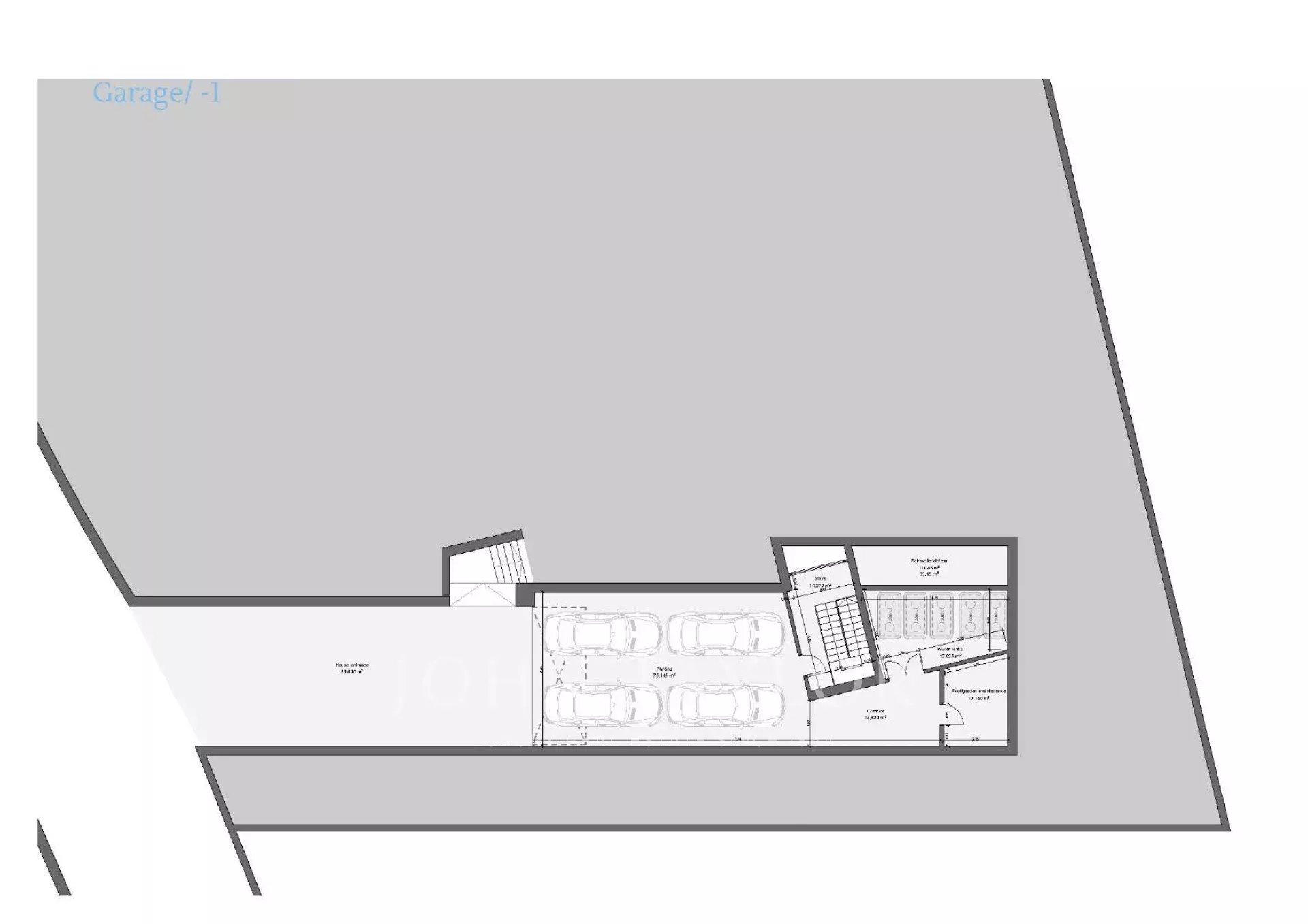
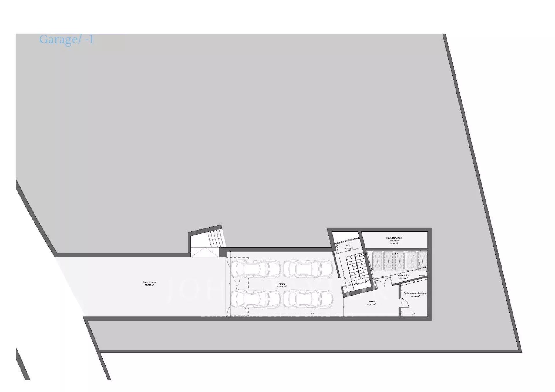
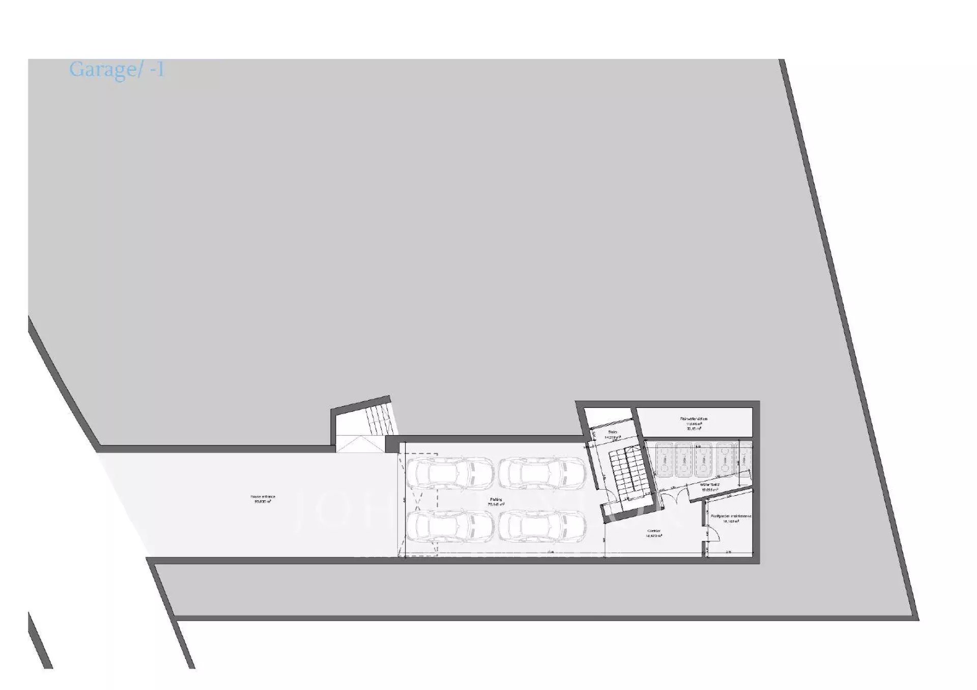
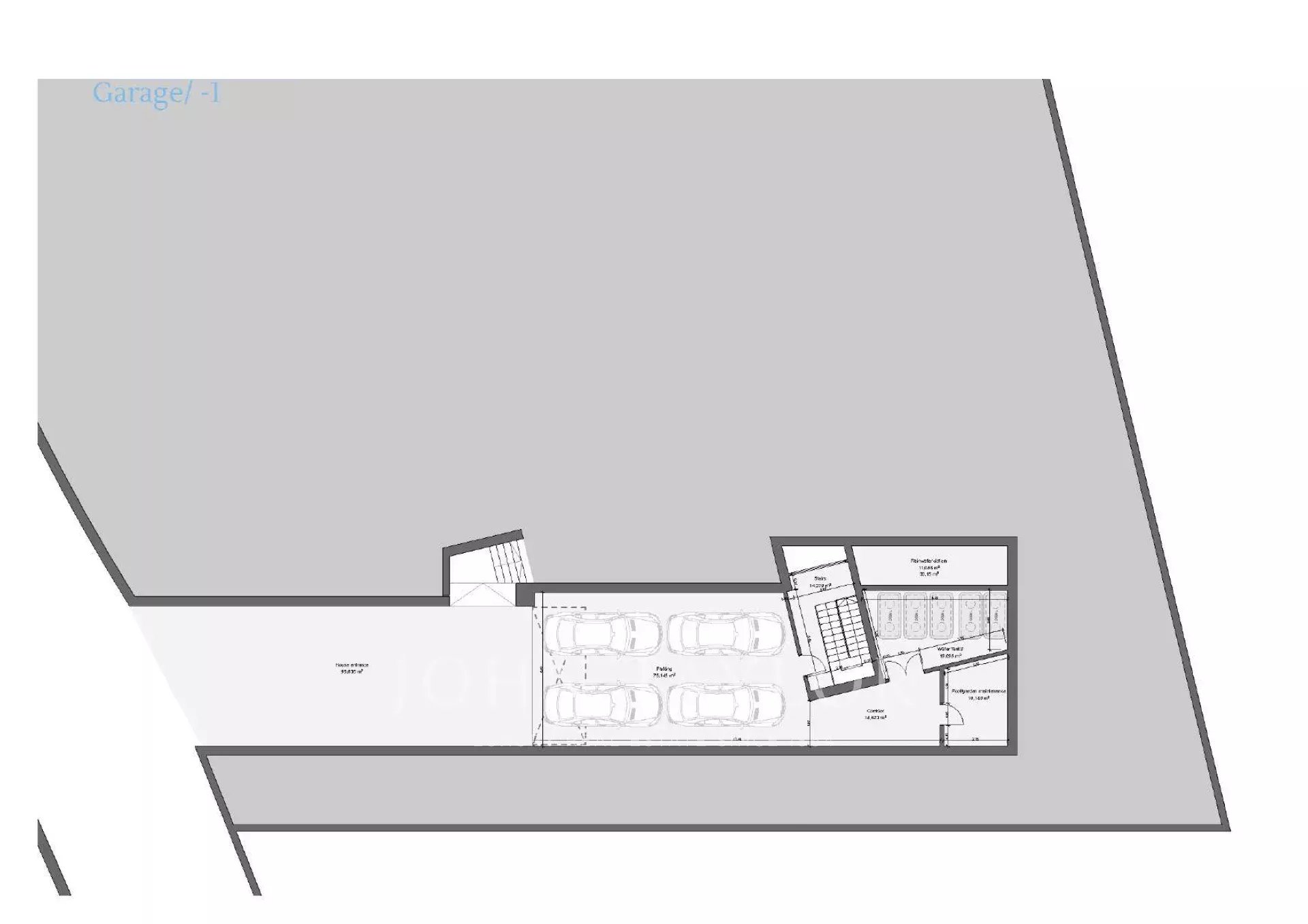
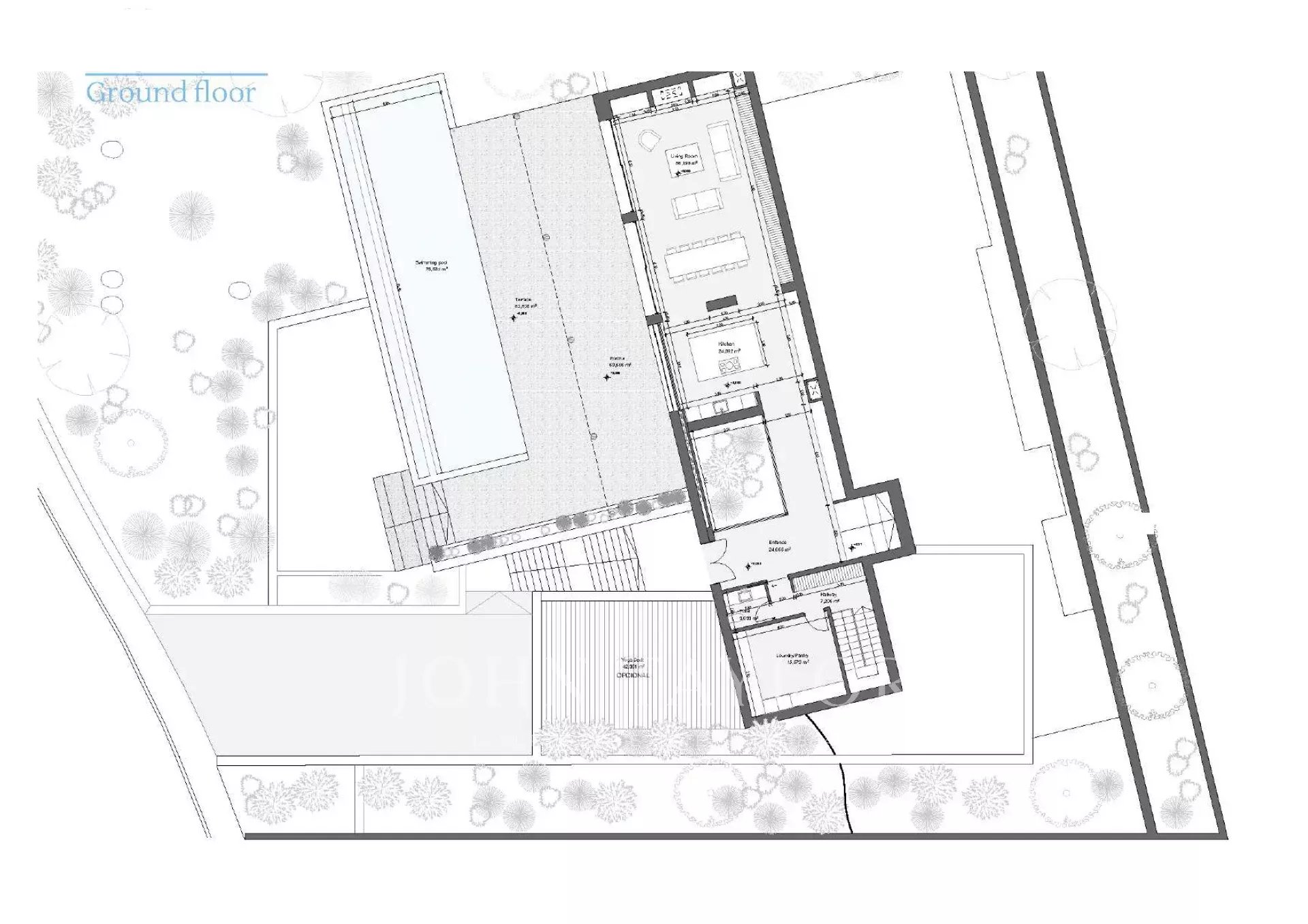
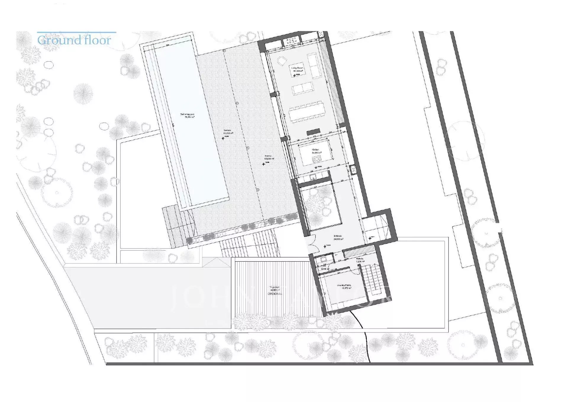
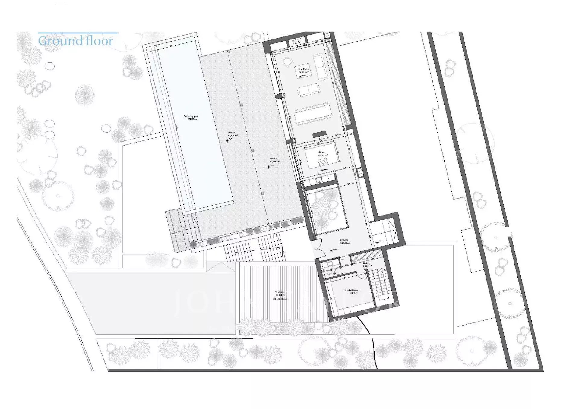
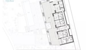
Surface 711 m²711 m²Terrain 1 700 m²1 700 m²6 Chambres6 Chambres6 Salles de bains6 Salles de bainsExposition West West Vue Mer Mer Garage / GaragesGarage

  • V0632IB
  • Vente
  • Villa

Proximités

  • Plage
  • Supermarché

agence immobilière de prestige IBIZA
  • JT REAL ESTATE IBIZA SL
    Terrazas De Botafoch
    Passeig Joan Carles I, 39
  • IBIZA
  • ESPAGNE

John Taylor
Demande en ligne

* Champs obligatoires
Les informations recueillies sont nécessaires au traitement de votre demande. À tout moment, vous disposez d’un droit d’accès, de modification et de suppression de vos données.