• Maison à vendre Bordeaux - Bouliac, Sud Ouest, France
    1 320 000 EUR

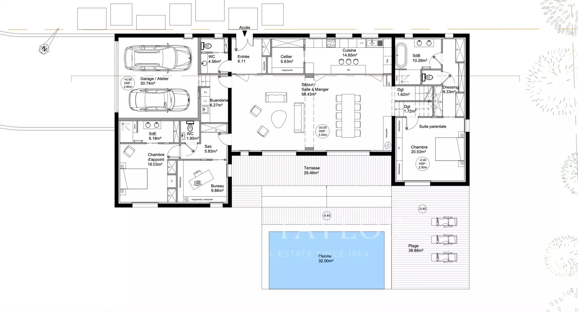
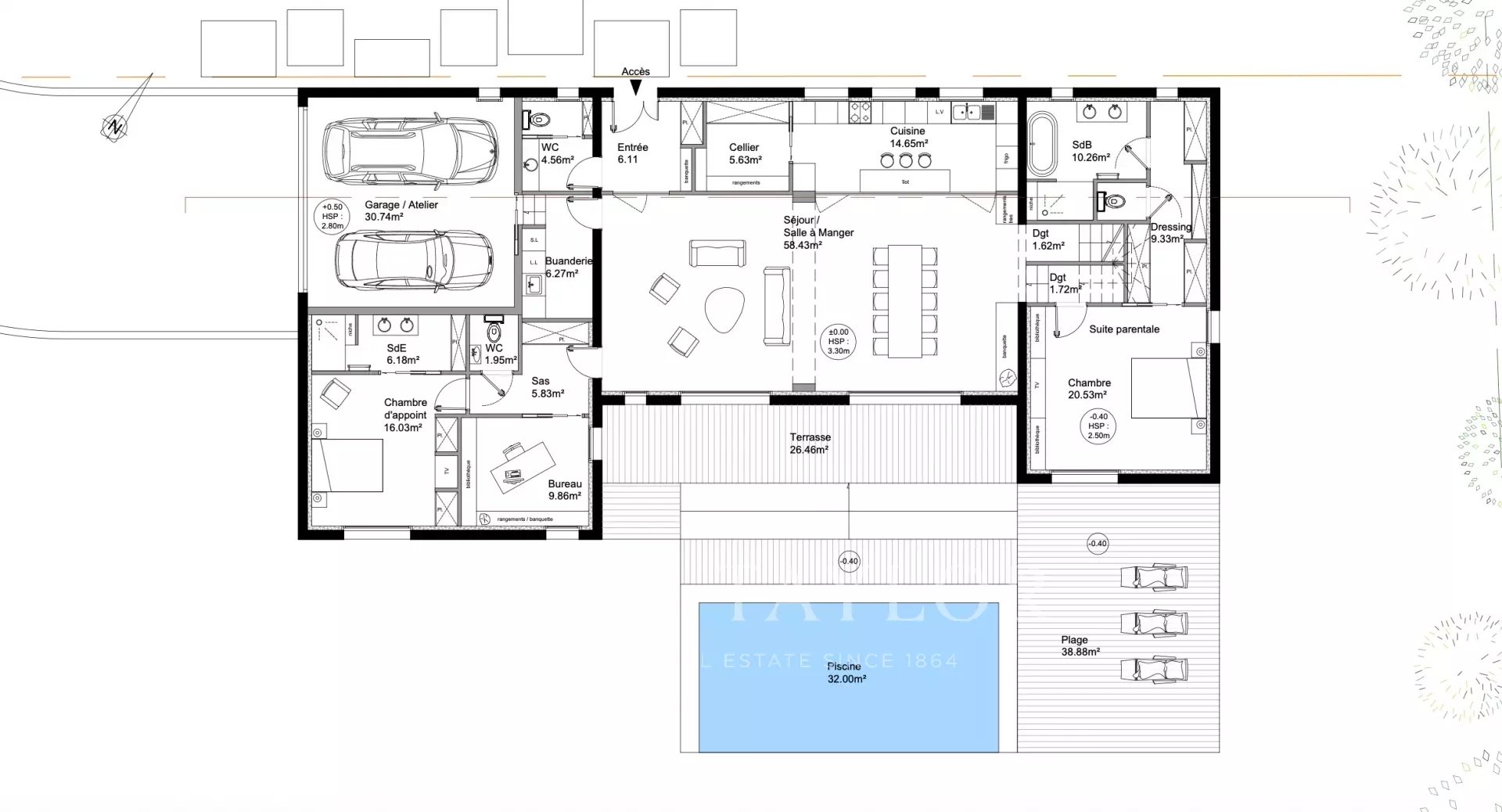
Surface 220 m²220 m²Terrain 250 m²250 m²Terrain 2 500 m²2 500 m²4 Chambres4 Chambres6 Pièces6 Pièces2 Salles de bains2 Salles de bainsVue Dégagée Dégagée PiscinePiscine

BOULIAC - PROJET DE MAISON D'ARCHITECTE - JOHN TAYLOR

  • V0516BX
  • Vente
  • Maison

Situé dans une impasse paisible du Haut Bouliac, ce projet immobilier offre une opportunité rare dans un environnement privilégié.

Le terrain de 2 500 m², en retrait de la voie publique, bénéficie d’une vue imprenable sur un bois protégé, apportant calme et intimité à la future résidence. La bâtisse, d’environ 220 m², est orientée sud-ouest, permettant de profiter pleinement de la luminosité naturelle toute la journée.

Conçue pour accueillir une vie de famille harmonieuse, cette maison mise sur des espaces généreux et une orientation optimale. Le séjour spacieux, approchant les 60 m² et 3m30 de hauteur sous plafond, s’ouvre sur une terrasse sans vis-à-vis, idéale pour recevoir ou se détendre en toute intimité. De là, on accède à une piscine pour profiter pleinement du cadre naturel.

L’agencement comprend un bureau fermé avec vue sur le forêt, permettant d’y télétravailler, quatre chambres équipées de salles d’eau, ainsi qu’une suite parentale dotée d’une salle de bains et d’un dressing, garantissant confort et espace privé pour chacun. Un double garage vient compléter cette proposition, offrant stationnement pratique et sécurisé.

Ce projet permet de concevoir une résidence raffinée, lumineuse et en harmonie avec son environnement, dans un secteur prisé du Haut Bouliac, où confort et nature se rencontrent pour une qualité de vie exceptionnelle.

La valeur du terrain est de 650 000 € (frais d'agence à la charge de l'acquéreur inclus). La mission d'architecte, la construction et son suivi sont chiffrés à 670 000 €.

Contactez-nous dès aujourd'hui pour obtenir de plus amples informations sur ce projet.

Consommation conventionnelle
Estimation des émissions

Proximités

  • Centre ville
  • Tennis
  • Mer
  • Gare TGV

agence immobilière de prestige BORDEAUX
  • Sud Ouest Résidences
    168 rue Fondaudège
  • 33000 BORDEAUX
  • Gironde, FRANCE

John Taylor
Demande en ligne

* Champs obligatoires
Les informations recueillies sont nécessaires au traitement de votre demande. À tout moment, vous disposez d’un droit d’accès, de modification et de suppression de vos données.